Sold €250,000 - Residential
Price Guide €250,000
Dick Barry & Son are delighted to bring this beautifully located and recently refurbished four bedroom semi detached property to the market with enclosed private garden to rear. Ideally located on the perimeter of Mitchelstown and within walking distance of shops, restaurants, church etc. The property is within easy access of the M8 motorway.
Viewing of this property is highly recommended.
Overall internal floor area: c. 133 m² (1,431 ft²)

BER: F
Ber No: 117518415
Energy Performance Indicator: 395.69 kWh/m²/yr
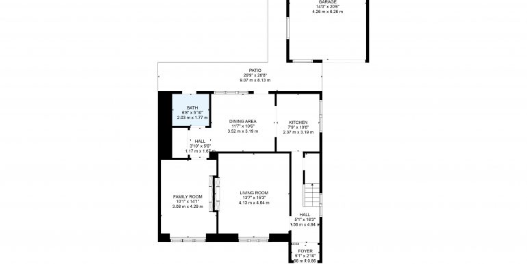
Accommodation:
Ground Floor
Kitchen/Dining Room: 5.93m x 3.17m, With floor & eye level units, display cabinet, tiled splashback, integrated fridge freeze, built in oven & hob.
Utility Room: 1.93m x 1.90, Washing machine and dryer included in sale, WC.
Living Room: 3.93m x 3.84m, With blonde oak flooring (12mm), marble fireplace.
TV Room: 3.94m 2.59m, With blonde oak flooring (12mm), open fireplace, built in corner cabinet.
Upstairs
Bedroom 1: 3.46m x 3.35m, With blonde oak flooring (12mm), fitted wardrobes.
Bedroom 2: 3.36m x 2.75m, With blonde oak flooring (12mm).
Bedroom 3: 5.35m x 2.95m, With blonde oak flooring (12mm).
Bedroom 4: 3.93m x 2.61m, With blonde oak flooring (12mm).
Bathroom: 3.37m x 1.69m, With shower over bath, wash hand basin, WC.
Garage: 6.12m x 4.62m. Large spacious detached garage with aluminium up & over door suitable for office space, workshop, gym etc.
Garden: To the front of the property there is a driveway with off street parking and well maintained garden, to the rear there is an enclosed private garden which is not overlooked.
Features
– oil fired central heating
– All Mains Services
– Within walking distance of all amenities






























